コンテンツへスキップ
- 価格
9,000万円
- アパート
- 現行利回り
- 6.34%
|
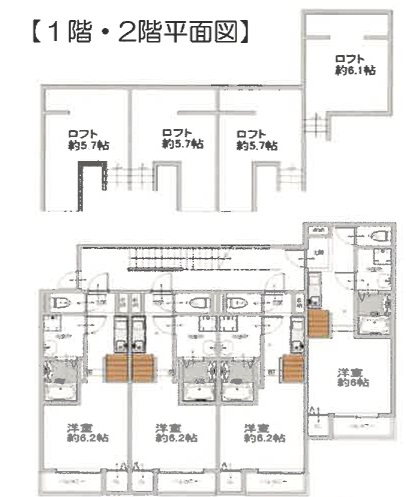
| 所在地 |
大阪府大阪市平野区喜連4丁目 |
| 交通 |
大阪メトロ谷町線喜連瓜破駅 徒歩6分 |
| 築年月 |
2017/6 |
新築/中古 |
中古 |
| 面積 |
161.18m²
|
計測方式 |
壁芯 |
| バルコニー |
|
向き |
|
| 建物階数 |
地上2階 |
部屋階数 |
|
| 部屋/区画番号 |
|
総戸/区画数 |
8 |
| 建物構造 |
木造 |
| 敷地全体面積 |
165.35m²
|
延べ床面積 |
161.18m²
|
| 間取内容 |
|
| 駐車場 |
|
取引態様 |
|
| 引渡/入居時期 |
|
現況 |
賃貸中 |
| 地目 |
宅地 |
用途地域 |
第二種中高層住居専用 |
| 都市計画 |
市街化区域 |
地勢 |
平坦 |
| 土地面積 |
165.35m² |
土地面積計測方式 |
公簿 |
| 建ぺい率 |
60% |
容積率 |
160% |
| 土地権利 |
所有権 |
接道状況 |
一方 |
| 接道方向1 |
北 |
接道間口1 |
11.7m
|
| 接道種別1 |
公道 |
接道幅員1 |
4.0m
|
| 周辺環境 |
|
| 設備・条件 |
ガスコンロ 給湯 洗髪洗面化粧台 独立洗面台 バス専用 シャワー トイレ専用 バス・トイレ別 温水洗浄便座 オートロック プロパンガス |
| 物件番号 |
5225434 |
| 自社物 |
先物 |
状態 |
|
| 特記事項 |
現状満室 月収475,500円 年収5,706,000円 |
※物件掲載内容と現況に相違がある場合は現況を優先と致します。
Fudousan Plugin Ver.5.2.5